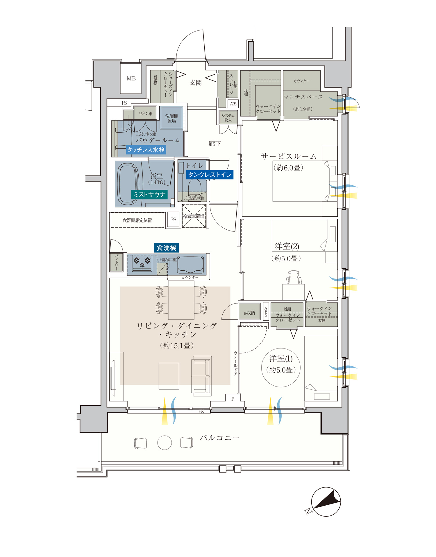
ROOM PLANルームプラン

image

Ctype
2LDK+S+3WIC+MS+ST+SIC
住戸専有面積/75.45m²(約22.82坪)
バルコニー面積/12.95m²(約3.91坪)
C type

【凡例】
通風通風 採光採光 床暖房床暖房
WIC=ウォークインクローゼット
SIC=シューズインクローゼット
MS=マルチスペース
ST=ストレージ

※掲載の間取図は設計図書を基に書き起こしたもので、実際とは多少異なる場合があります。また今後施工上の都合などにより変更となる場合があります。

CONTACT

「エクセレントシティ平井 ザ・レジデンス」

0120-262-625

営業時間10:00〜18:00 火・水曜日定休(祝・祭日を除く)

※携帯電話からもご利用になれます。

  • 〈売主・設計・施工・販売・管理・アフターサービス〉事業主・売主・設計・施工・販売 新日本建設
  • 信頼のAll in One デベロッパー 自社一貫システムの新日本建設

keyboard_arrow_up